物件詳細 一戸建 青森市
detailsDETAILS
一戸建 羽白字沢田 売家(築浅)
情報更新日:2026-03-11
セキスイハイム施工 4LDK。カーポート付(4台)です( ・ᴗ・ )⚐⚑⚐”
- 所在地
- 青森県 青森市 羽白字沢田67-10
- 価格
- 2,780万円
- 間取り
- 4LDK
- 築年数
- 平成30年9月
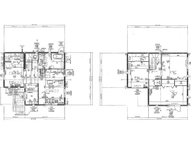
- 建物延面積
- 108.96㎡
- 敷地面積
- 200.03㎡ (公簿)
本物件の内容や画像等は全て現況優先となります。
各画像は参考図となります。
| 交通機関 | JR津軽線 油川駅徒歩5分 | ||
|---|---|---|---|
| 学区 | |||
| 詳細間取 | 4LDK (1階:洋6帖×1、2階:洋8帖×1、2階:洋9.5帖×1、2階:洋6.4帖×1、1階:LDK13.5帖) | ||
| 周辺施設 | |||
| 周辺環境 | その他費用 | ||
| 総戸数 | 建物構造 | ||
| 築年月 | 平成30年9月 | 主要採光方向 | 不明 |
| 駐車場 | 敷地内 可 | 地勢 | 平坦 |
| 駐車場複数台 | 可 | 土地権利 | 所有権 |
| 用途地域 | 第一種低層住居専用 | 国土法届 | 不要 |
| 取引態様 | 仲介 | 現況 | 居住中 |
| 引渡 | 他 (現在入居中のた契約締結後) | 建ぺい率/容積率 | 50% / 80% |
| 地目 | 宅地 | 都市計画 | 市街化 |
| セットバック | 無 | 接道状況 | 一方(公道・南西側・間口9.9m・幅員6.5m) |
| 私道負担 | ─ / ─ | 建築確認番号 | 000000-00000 |
| 法令上の制限 | |||
| 設備 | バス(有 シャワー有 給湯式) トイレ(洋式 独立 水洗 暖房便座 洗浄機能付) 上水道設備(公営) 下水道設備 給湯(石油)1箇所 洗面化粧台(独立)(シャワー付) LPガス TV付インターホン エアコン パネルヒーター 床下収納 下駄箱 洗濯機置場 浴室乾燥機 システムキッチン 網戸 カーテンレール 照明器具 電話配線設備 TVアンテナ カーポート フローリング クローゼット 郵便受 バリアフリー | ||
| 備考 | 売主様入居中のため、内見に関しては、事前予約をお願いします。 携帯 070-5324-4102迄、お願いします。 ★地震に強い、降雪地域用の軽量鉄骨と基礎 ★壁の塗り替えがいらない磁器タイル。 ★屋根は積雪2m耐用ステレスフラットタイプ。ペンキ不要 ★トリプルガラスなので夏冬経済的。 築浅の綺麗な物件です*:.。.(*๓´╰╯`๓*).。.:* よろしくお願いします。 現況と相違ある場合は、現況優先でお願いします。 令和7年度 固定資産税額 土地:8,109円 建物:124,446円 ※同業他社による客付け可 | ||
| 取扱業者 |
(有)あおもりホームセンター 青森県知事免許(7)第2636号 青森県青森市緑1丁目2-15 TEL:017-774-4102 FAX:017-776-0575 (公社)青森県宅地建物取引業協会会員 東北地区不動産公正取引協議会加盟事業者 |
||





